メルベーユ城東 ***号室(7階/3LDK)の賃貸物件(賃貸マンション)
大阪府大阪市城東区にあるメルベーユ城東 ***号室は温水洗浄便座、宅配ボックス、照明器具付、BS、都市ガスなどが特徴です。最寄り駅の大阪メトロ 長堀鶴見緑地線蒲生四丁目駅から徒歩2分です。メルベーユ城東 ***号室の詳細はハウスコム FC緑橋店までお気軽にお問い合わせください!
情報更新日:
次回更新予定日:
※次回更新予定日について:お店側では順次空室確認を行っていますが、次回更新予定日までに空室確認が行えない場合には、この物件情報は自動的に削除されます。
メルベーユ城東 ***号室の賃貸物件部屋概要
家賃 |
17.5万円
初期費用を |
|---|---|
共益費 |
9,000円
入居可能時期 |
敷金/礼金 |
- / 350,000円 |
保証金/ |
- / - |
最寄駅 |
|
所在地 |
大阪府大阪市城東区今福西 |
部屋番号 |
***号室 |
間取り |
3LDK(LD15.3・洋7.7・洋5.5・K3.8・和4.5) |
専有面積 |
88.86㎡ |
築年数 |
2004年1月(築22年) |
階数 |
7階部分(地上8階建) |
方位・位置 |
南東 / 角部屋 |
物件種別 |
賃貸マンション |
構造 |
RC |
駐車場 |
近隣 18,000円 |
小学校学区 |
聖賢小学校 |
中学校学区 |
蒲生中学校 |
他の空き部屋 |
ー |
- 学区データについて
- ※学区データは必ずしも正確とは限りません。詳細に関しては最寄店舗または各自治体の教育委員会に必ずご確認ください。
メルベーユ城東 ***号室の特徴
-
一人暮らしに人気の設備

-
カップルに人気の設備

-
家族に人気の設備

-
夫婦に人気の設備

-
三世代で人気の設備

-
セキュリティ対策重視

-
収納重視

-
雨の日でも洗濯したい

-
洋室で暮らしたい

-
持ち物をスッキリ隠す収納部屋

-
料理が好き

-
服やおしゃれが好き

-
推し活グッズを飾りたい

契約条件
この物件は、2人入居もご契約できます。 敷金が無料なため、初期費用が比較的安くなる傾向にあります。 お支払いは、初期費用がクレジットカードにて決済できます。
セキュリティ
この物件の建物には、オートロックや防犯カメラや宅配ボックスが設置されており、来客時には居室内のテレビモニターにて訪問者の顔を確認することができます。
室内設備
システムキッチンには、ガスコンロが備え付けられています。 お風呂とトイレは別です。お風呂には、追い焚き機能が備わっています。 トイレは、温水洗浄便座機能付きになります。 女性に嬉しい設備のシャワーの付いている洗面化粧台があります。 洗濯に便利な設備として、室内洗濯機置場があります。浴室乾燥機も設置されているので、梅雨時の生乾き臭も比較的防ぐことができます。
居室状況
居室には、和室の居室もあり、子育てやリラックススペースとしての利用もできます。 お部屋の床は、全居室フローリングとなっています。照明器具が備え付けられており、入居後すぐ生活が始められます。 収納スペースとして、基本的な居室にクローゼットを設置、通常よりも収納力の高いウォークインクローゼット、玄関にはシューズボックスがあります。
建物設備共用部分
居室外の専有スペースとして、洗濯物を干すなどの用途として利用できるバルコニーがあります。 建物の共用スペースに、日々の出入に便利なエレベーターや、いざという時の防犯カメラや、急な外出や不在がちのご家庭の荷物受け取りに便利な宅配ボックスが設置されています。 駐輪場が利用できます。
周辺施設
この物件の学区は、聖賢小学校区・蒲生中学校区です。近くには、徒歩14分(1051m)でドラッグストアがあります。
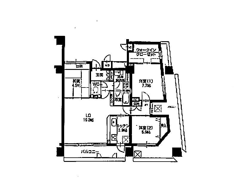
メルベーユ城東 ***号室の間取り
間取り:3LDK
間取詳細:3LDK(LD15.3・洋7.7・洋5.5・K3.8・和4.5)
専有面積:88.86㎡
方位:南東
部屋位置:角部屋
メルベーユ城東 ***号室の設備
キッチン
システムキッチン
カウンターキッチン
ガスコンロ
バス・トイレ
バス・トイレ別
追い焚き
浴室乾燥機
温水洗浄便座
独立洗面台
シャワー付洗面化粧台
玄関
TVモニタ付インターホン
オートロック
宅配ボックス
収納
クローゼット
ウォークインクローゼット
シューズボックス
全居室収納
バルコニー
バルコニー
室内設備
フローリング
全居室フローリング
室内洗濯機置場
照明器具付
和室あり
位置・立地
2階以上
角部屋
インフラ
インターネット可
CATV
BS
都市ガス
建物設備
エレベーター
防犯カメラ
24時間換気システム
駐輪場
入居条件
2人入居可
オンライン内見可
即入居可
ライフステージ
一人暮らしに人気の設備
カップルに人気の設備
家族に人気の設備
夫婦に人気の設備
三世代で人気の設備
こだわり
セキュリティ対策重視
収納重視
雨の日でも洗濯したい
洋室で暮らしたい
持ち物をスッキリ隠す収納部屋
趣味
料理が好き
服やおしゃれが好き
推し活グッズを飾りたい
お得な条件
初期費用カード決済可
メルベーユ城東 ***号室の賃貸契約情報
毎月支払う |
家賃17.5万円/月共益費9,000円/月 |
|---|---|
初期費用 |
敷金-礼金350,000円保証金-敷引き償却金- |
更新料 |
- |
鍵交換費用 |
- |
室内清掃費用 |
77,000円 |
駐車場料金 |
近隣 18,000円 |
損保・ |
借家賠付きの火災保険にご加入いただきます。 |
保証会社 |
加入要 保証会社:㈱レジデンシャルサービス 保証会社利用料:初回契約時:50%、更新時:50% |
契約期間 |
2年 |
入居可能日 |
即入居可 |
フリーレント期間 |
- |
取引形態 |
仲介 |
備考 |
インターネット掲載物件に関わらず、大阪市内全域のお部屋探しが可能となっております!複数の業者にお問い合わせすることなく弊社にて正確な最新の空室状況をご確認させていただきます♪初期費用分割決算も可能となっており、ご都合に合わせて支払い回数も選べます!現地で待ち合わせ、営業時間外のご案内、保証人なし、法人契約、初期費用等その他何でもご相談下さい!インターネットに掲載していない非公開物件ご用意してます! |
メルベーユ城東 ***号室の建物情報
建物名称 |
メルベーユ城東 |
|---|---|
最寄駅 |
|
所在地 |
大阪府大阪市城東区今福西 |
階層 |
7階部分(地上8階建) |
構造 |
RC |
築年数 |
2004年1月(築22年) |
駐車場 |
近隣 18,000円 |
小学校学区 |
聖賢小学校 |
中学校学区 |
蒲生中学校 |
- 学区データについて
- ※学区データは必ずしも正確とは限りません。詳細に関しては最寄店舗または各自治体の教育委員会に必ずご確認ください。
無料この物件に問い合わせ
- メルベーユ城東 ***号室

-
17.5万円
(共益費
9,000円)
- 敷
- -
- 礼
- 350,000円
- 保
- -
- 償
- -
メルベーユ城東 ***号室の物件のお問い合わせ先・取り扱い店舗
ハウスコム FC緑橋店
- アクセス
-
大阪メトロ 中央線「緑橋駅」徒歩1分
大阪環状線「森ノ宮駅」徒歩12分
大阪メトロ 中央線「深江橋駅」徒歩16分
- 住所
- 〒537-0022 大阪府大阪市東成区中本1丁目11-19 ネオ緑橋ハイツ1F
- 営業時間
- AM10:00~PM08:00
- 定休日
- なし(年末年始を除く)
- 営業エリア
- 大阪市全域 都島区・福島区・此花区・西区・港区・大正区・天王寺区・浪速区 ・西淀川区・東淀川区・東成区・生野区・旭区・城東区 ・阿倍野区・住吉区・東住吉区・西成区・淀川区 ・鶴見区・住之江区・平野区・北区・中央区
- 取引態様
- 賃貸仲介業・FC店





























