***号室

写真を見る
16.8万円 (共益費 10,000円)
- 敷
- -
- 礼
- 1ヶ月
- 保
- -
- 償
- -
公開
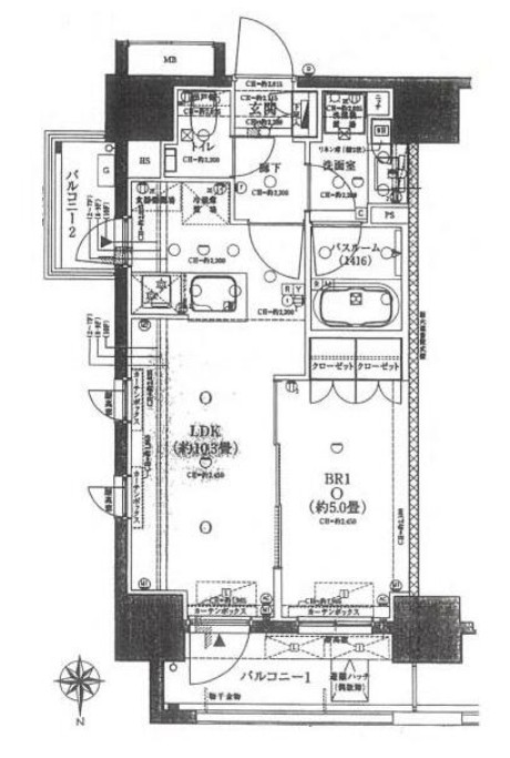
オープンレジデンシア王子は、東京都北区王子にある10階建の賃貸マンションです。築年月は、2018年11月で現在築8年になります。最寄り駅の東京メトロ 南北線王子駅から徒歩6分です。
この建物に5件の情報更新日:
取り扱う不動産会社・店舗が5社、募集中の部屋が5部屋あります。

写真を見る




























16.8万円 (共益費 10,000円)
公開

写真を見る




























16.8万円 (共益費 10,000円)
公開

写真を見る




























16.8万円 (共益費 10,000円)
公開

写真を見る




























16.8万円 (共益費 10,000円)
公開

写真を見る




























16.8万円 (共益費 10,000円)
公開
掲載履歴とは、過去に掲載された時点の情報を履歴として一覧にまとめたものです。
※最終的な成約賃料とは異なる場合があります。また、将来の募集賃料を保証するものではありません。
40代 / 男性 / 元住人
飛鳥山公園、音無親水公園など、大きな公園が沢山あって、緑にはかなり恵まれた地域ではないでしょうか。 春は石神井川沿いの桜が見事です。 飛鳥山公園では、桜はもちろんですが、6月の紫陽花も圧巻です。自然環境はかなり良いと思います。
30代 / 女性 / 住人
とにかく緑が多い。元工業地帯とのことで工場が気になってはいたが音はするけれどそれほど響かないし、快適でした。公園も多く、小学生くらいまでのお子さんをたくさん見かけるほどで子育てには良い環境かと思います。
※口コミに関するお問い合わせはこちらからお願いします。




JR山手線池袋駅から徒歩10分
執事が接客するカフェでお嬢様気分
本格派イングリッシュ・アフタヌーン・ティーが楽しめる。執事が接客してくれる店内は、英国の屋敷をイメージした重厚でエレガントな雰囲気。予約制なので要注意。
提供元:昭文社




地下鉄東池袋駅から徒歩10分
深い奥行き感のあるリアルな星空を体感
全天ドームスクリーンに映し出される8Kマルチプロジェクションシステムにより、臨場感の高い鮮やかな映像を実現。リニューアルにより、寝転んで星空を眺められる『雲シート』とともに大人気の『芝シート』が更に心ときめくエリアに。プラネタリウムの伝説的名作『銀河鉄道の夜』を、満天史上最も美しいクオリティで上映する。都会の真ん中で体感したことのない世界に浸れ、特別な時間を堪能できる。
提供元:昭文社




地下鉄東池袋駅から徒歩5分
天空のオアシスを基本コンセプトにした水族館
ビル屋上にある都市型高層水族館。大海の旅、水辺の旅、天空の旅の3エリアに分かれており、ペンギンが空を飛ぶように泳ぐ水槽や、日本最大級のクラゲ水槽を含むクラゲエリアなど、ユニークな展示を実施。水の世界を五感で体験できる。
提供元:昭文社