RJRプレシア東十条ガーデン 1006号室(10階/2LDK)の賃貸物件(賃貸マンション)
東京都北区にあるRJRプレシア東十条ガーデン 1006号室はシューズボックス、ルーフバルコニー、室内洗濯機置場、インターネット可、都市ガスなどが特徴です。最寄り駅の京浜東北・根岸線東十条駅から徒歩6分です。RJRプレシア東十条ガーデン 1006号室の詳細はハウスコム 赤羽店までお気軽にお問い合わせください!
情報更新日:
次回更新予定日:
※次回更新予定日について:お店側では順次空室確認を行っていますが、次回更新予定日までに空室確認が行えない場合には、この物件情報は自動的に削除されます。
RJRプレシア東十条ガーデン 1006号室の賃貸物件部屋概要
家賃 |
22.1万円
初期費用を |
|---|---|
共益費 |
15,000円
入居可能時期 |
敷金/礼金 |
1ヶ月 / - |
保証金/ |
- / - |
最寄駅 |
|
所在地 |
東京都北区東十条 |
部屋番号 |
1006号室 |
間取り |
2LDK(LDK10.6・洋5・洋4) |
専有面積 |
49.07㎡ |
築年数 |
2025年1月 |
階数 |
10階部分(地上14階建) |
方位・位置 |
ー / その他 |
物件種別 |
賃貸マンション |
構造 |
RC |
駐車場 |
- |
小学校学区 |
東十条小学校 |
中学校学区 |
王子桜中学校 |
他の空き部屋 |
1306号室 212号室 401号室 404号室 428号室 ***号室 ***号室 ***号室 802号室 905号室 |
- 学区データについて
- ※学区データは必ずしも正確とは限りません。詳細に関しては最寄店舗または各自治体の教育委員会に必ずご確認ください。
RJRプレシア東十条ガーデン 1006号室の特徴
-
一人暮らしに人気の設備

-
カップルに人気の設備

-
家族に人気の設備

-
夫婦に人気の設備

-
三世代で人気の設備

-
外で子どもと遊びたい

-
身だしなみに気をつかいたい

-
雨の日でも洗濯したい

-
洋室で暮らしたい

-
料理が好き

-
服やおしゃれが好き

-
推し活グッズを飾りたい

-
ガーデニングが好き

契約条件
この物件は、2人入居もご契約できます。 ペットの飼育もご相談ください。 また、ご契約時に保証人は不要です。 礼金が無料なため、初期費用が比較的安くなる傾向にあります。
セキュリティ
この物件の建物には、オートロックや宅配ボックスが設置されております。
室内設備
システムキッチンには、ガスコンロが備え付けられています。 お風呂とトイレは別です。お風呂には、追い焚き機能が備わっています。 トイレは、温水洗浄便座機能付きになります。 女性に嬉しい設備のシャワーの付いている洗面化粧台があります。 洗濯に便利な設備として、室内洗濯機置場があります。浴室乾燥機も設置されているので、梅雨時の生乾き臭も比較的防ぐことができます。
居室状況
お部屋の床は、フローリングとなっており、エアコンが設置されています。 収納スペースとして、基本的な居室にクローゼットを設置、通常よりも収納力の高いウォークインクローゼット、玄関にはシューズボックスがあります。
建物設備共用部分
居室外の専有スペースとして、洗濯物を干すなどの用途として利用できるバルコニーがあります。 建物の共用スペースに、日々の出入に便利なエレベーターや、急な外出や不在がちのご家庭の荷物受け取りに便利な宅配ボックスが設置されています。 バイク置き場が利用できます。
周辺施設
この物件の学区は、東十条小学校区・王子桜中学校区です。
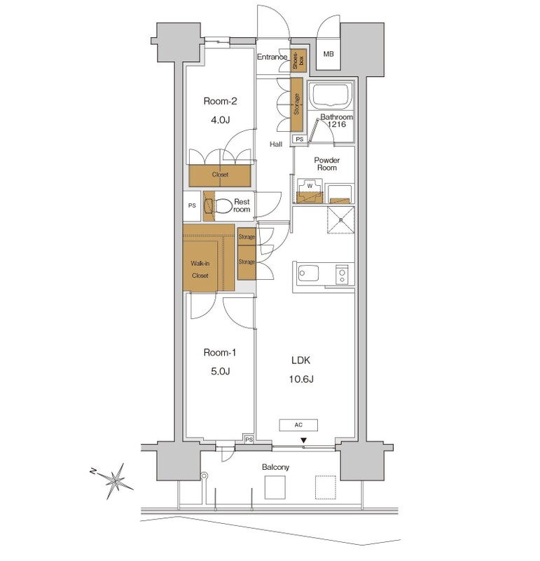
RJRプレシア東十条ガーデン 1006号室の間取り
間取り:2LDK
間取詳細:2LDK(LDK10.6・洋5・洋4)
専有面積:49.07㎡
方位:ー
部屋位置:その他
RJRプレシア東十条ガーデン 1006号室の設備
キッチン
システムキッチン
カウンターキッチン
ガスコンロ
バス・トイレ
バス・トイレ別
追い焚き
浴室乾燥機
温水洗浄便座
独立洗面台
シャワー付洗面化粧台
玄関
オートロック
宅配ボックス
収納
クローゼット
ウォークインクローゼット
シューズボックス
バルコニー
バルコニー
ルーフバルコニー
室内設備
エアコン
フローリング
室内洗濯機置場
位置・立地
2階以上
インフラ
インターネット可
BS
都市ガス
建物設備
エレベーター
バイク置き場
分譲賃貸
入居条件
ペット可・相談
2人入居可
オンライン相談可
オンライン内見可
保証人不要
即入居可
ライフステージ
一人暮らしに人気の設備
カップルに人気の設備
家族に人気の設備
夫婦に人気の設備
三世代で人気の設備
こだわり
外で子どもと遊びたい
身だしなみに気をつかいたい
雨の日でも洗濯したい
洋室で暮らしたい
趣味
料理が好き
服やおしゃれが好き
推し活グッズを飾りたい
ガーデニングが好き
RJRプレシア東十条ガーデン 1006号室の賃貸契約情報
毎月支払う |
家賃22.1万円/月共益費15,000円/月 |
|---|---|
初期費用 |
敷金1ヶ月 (22.1万円)礼金-保証金-敷引き償却金- |
更新料 |
221,000円 |
鍵交換費用 |
- |
室内清掃費用 |
93,069円 |
駐車場料金 |
- |
損保・ |
借家賠付きの火災保険にご加入いただきます。 |
保証会社 |
加入要 保証会社利用料:初回保証委託料(最低15,000円):月額賃料等の50%、 2年目以降:10,000円/年 |
契約期間 |
2年 |
入居可能日 |
即入居可 |
フリーレント期間 |
- |
取引形態 |
一般媒介 |
備考 |
室内清掃費用 93069円 月額:口座振替手数料 110円 保証会社利用必須 初回保証委託料(最低15000円):月額賃料等の50%、 2年目以降:10000円/年 |
RJRプレシア東十条ガーデン 1006号室の建物情報
建物名称 |
RJRプレシア東十条ガーデン |
|---|---|
最寄駅 |
|
所在地 |
東京都北区東十条 |
階層 |
10階部分(地上14階建) |
構造 |
RC |
築年数 |
2025年1月 |
駐車場 |
- |
小学校学区 |
東十条小学校 |
中学校学区 |
王子桜中学校 |
- 学区データについて
- ※学区データは必ずしも正確とは限りません。詳細に関しては最寄店舗または各自治体の教育委員会に必ずご確認ください。
無料この物件に問い合わせ
- RJRプレシア東十条ガーデン 1006号室

-
22.1万円
(共益費
15,000円)
- 敷
- 1ヶ月
- 礼
- -
- 保
- -
- 償
- -
RJRプレシア東十条ガーデン 1006号室の物件のお問い合わせ先・取り扱い店舗
ハウスコム 赤羽店
- アクセス
-
京浜東北・根岸線「赤羽駅」南口徒歩1分
- 住所
- 〒115-0044 東京都北区赤羽南1丁目7−3 厚生堂ビル1階
- 営業時間
- 10:00~18:00
- 定休日
- なし(12/25~1/3は休業)
- 営業エリア
- 北区,板橋区,足立区,川口市,戸田市
- 取引態様
- 賃貸仲介業


























