クレイシア赤羽 201号室(2階/1K)の賃貸物件(賃貸マンション)
東京都北区にあるクレイシア赤羽 201号室はバス・トイレ別、温水洗浄便座、2階以上、角部屋、防犯カメラなどが特徴です。最寄り駅の埼京線赤羽駅から徒歩6分です。クレイシア赤羽 201号室の詳細はハウスコム 赤羽店までお気軽にお問い合わせください!
情報更新日:
次回更新予定日:
※次回更新予定日について:お店側では順次空室確認を行っていますが、次回更新予定日までに空室確認が行えない場合には、この物件情報は自動的に削除されます。
クレイシア赤羽 201号室の賃貸物件部屋概要
家賃 |
10万円
初期費用を |
|---|---|
共益費 |
12,000円
入居可能時期 |
敷金/礼金 |
1ヶ月 / 1ヶ月 |
保証金/ |
- / - |
最寄駅 |
|
所在地 |
東京都北区赤羽 |
部屋番号 |
201号室 |
間取り |
1K(洋8) |
専有面積 |
25.59㎡ |
築年数 |
2020年4月(築6年) |
階数 |
2階部分(地上15階建) |
方位・位置 |
西 / 角部屋 |
物件種別 |
賃貸マンション |
構造 |
RC |
駐車場 |
- |
小学校学区 |
赤羽小学校 |
中学校学区 |
赤羽岩淵中学校 |
他の空き部屋 |
ー |
- 学区データについて
- ※学区データは必ずしも正確とは限りません。詳細に関しては最寄店舗または各自治体の教育委員会に必ずご確認ください。
クレイシア赤羽 201号室の特徴
セキュリティ
この物件の建物には、オートロックや防犯カメラや宅配ボックスが設置されております。
室内設備
トイレは、温水洗浄便座機能付きになります。 洗濯に便利な設備として、浴室乾燥機も設置されているので、梅雨時の生乾き臭も比較的防ぐことができます。
居室状況
エアコンが設置されています。 インターネットも無料で入居後すぐ生活が始められます。 収納スペースとして、基本的な居室にクローゼットがあります。
建物設備共用部分
居室外の専有スペースとして、洗濯物を干すなどの用途として利用できるバルコニーがあります。 建物の共用スペースに、日々の出入に便利なエレベーターや、いざという時の防犯カメラや、急な外出や不在がちのご家庭の荷物受け取りに便利な宅配ボックスが設置されています。
周辺施設
この物件の学区は、赤羽小学校区・赤羽岩淵中学校区です。
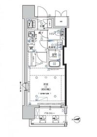
クレイシア赤羽 201号室の間取り
間取り:1K
間取詳細:1K(洋8)
専有面積:25.59㎡
方位:西
部屋位置:角部屋
クレイシア赤羽 201号室の設備
バス・トイレ
バス・トイレ別
浴室乾燥機
温水洗浄便座
玄関
オートロック
宅配ボックス
収納
クローゼット
バルコニー
バルコニー
ルーフバルコニー
室内設備
エアコン
位置・立地
2階以上
角部屋
建物設備
エレベーター
防犯カメラ
ライフステージ
一人暮らしに人気の設備
カップルに人気の設備
家族に人気の設備
夫婦に人気の設備
三世代で人気の設備
こだわり
外で子どもと遊びたい
雨の日でも洗濯したい
趣味
オークション・通販が好き
ガーデニングが好き
お得な条件
インターネット無料
クレイシア赤羽 201号室の賃貸契約情報
毎月支払う |
家賃10万円/月共益費12,000円/月 |
|---|---|
初期費用 |
敷金1ヶ月 (10万円)礼金1ヶ月 (10万円)保証金-敷引き償却金- |
更新料 |
100,000円 |
鍵交換費用 |
- |
室内清掃費用 |
- |
退去時エアコンクリーニング |
14,300円 |
除菌消臭 |
8,800円 |
退去時ハウスクリーニング |
55,000円 |
駐車場料金 |
- |
損保・ |
借家賠付きの火災保険にご加入いただきます。 |
保証会社 |
加入要 保証会社利用料:保証料(初回契約時)40%、保証料(年間)10,000円、その他プラン有(新日本信用保証の場合 口座振替手数料216円(税込)/月) |
契約期間 |
2年 |
入居可能日 |
相談 |
フリーレント期間 |
- |
取引形態 |
一般媒介 |
備考 |
- |
クレイシア赤羽 201号室の建物情報
建物名称 |
クレイシア赤羽 |
|---|---|
最寄駅 |
|
所在地 |
東京都北区赤羽 |
階層 |
2階部分(地上15階建) |
構造 |
RC |
築年数 |
2020年4月(築6年) |
駐車場 |
- |
小学校学区 |
赤羽小学校 |
中学校学区 |
赤羽岩淵中学校 |
- 学区データについて
- ※学区データは必ずしも正確とは限りません。詳細に関しては最寄店舗または各自治体の教育委員会に必ずご確認ください。
無料この物件に問い合わせ
- クレイシア赤羽 201号室

-
10万円
(共益費
12,000円)
- 敷
- 1ヶ月
- 礼
- 1ヶ月
- 保
- -
- 償
- -
クレイシア赤羽 201号室の物件のお問い合わせ先・取り扱い店舗
ハウスコム 赤羽店
- アクセス
-
京浜東北・根岸線「赤羽駅」南口徒歩1分
- 住所
- 〒115-0044 東京都北区赤羽南1丁目7−3 厚生堂ビル1階
- 営業時間
- 10:00~18:00
- 定休日
- なし(12/25~1/3は休業)
- 営業エリア
- 北区,板橋区,足立区,川口市,戸田市
- 取引態様
- 賃貸仲介業





















