AIFLAT明大前 503号室(5階/1LDK)の賃貸物件(賃貸マンション)
東京都世田谷区にあるAIFLAT明大前 503号室はガスコンロ、ルーフバルコニー、24時間ゴミ出しOK、平面駐車場、バイク置き場などが特徴です。最寄り駅の京王線明大前駅から徒歩7分です。AIFLAT明大前 503号室の詳細はハウスコム 明大前店までお気軽にお問い合わせください!
情報更新日:
次回更新予定日:
※次回更新予定日について:お店側では順次空室確認を行っていますが、次回更新予定日までに空室確認が行えない場合には、この物件情報は自動的に削除されます。
AIFLAT明大前 503号室の賃貸物件部屋概要
家賃 |
20.5万円
初期費用を |
|---|---|
共益費 |
15,000円
入居可能時期 |
敷金/礼金 |
1ヶ月 / - |
保証金/ |
- / - |
最寄駅 |
|
所在地 |
東京都世田谷区松原 |
部屋番号 |
503号室 |
間取り |
1LDK(LDK9.6・洋4.5) |
専有面積 |
35.78㎡ |
築年数 |
新築 |
階数 |
5階部分(地上5階建) |
方位・位置 |
南東 / その他 |
物件種別 |
賃貸マンション |
構造 |
RC |
駐車場 |
27,500円 |
小学校学区 |
松原小学校 |
中学校学区 |
梅丘中学校 |
他の空き部屋 |
101号室 102号室 103号室 104号室 105号室 106号室 201号室 202号室 203号室 204号室 205号室 206号室 207号室 208号室 209号室 301号室 302号室 303号室 304号室 305号室 306号室 501号室 502号室 |
- 学区データについて
- ※学区データは必ずしも正確とは限りません。詳細に関しては最寄店舗または各自治体の教育委員会に必ずご確認ください。
AIFLAT明大前 503号室の特徴
-
一人暮らしに人気の設備

-
カップルに人気の設備

-
家族に人気の設備

-
夫婦に人気の設備

-
三世代で人気の設備

-
セキュリティ対策重視

-
収納重視

-
タイパ重視

-
外で子どもと遊びたい

-
急な来客でも駐車したい

-
雨の日でも洗濯したい

-
洋室で暮らしたい

-
持ち物をスッキリ隠す収納部屋

-
オークション・通販が好き

-
ガーデニングが好き

契約条件
この物件は、2人入居もご契約できます。 ペットの飼育もご相談ください。 また、ご契約時に保証人は不要です。 礼金が無料なため、初期費用が比較的安くなる傾向にあります。
セキュリティ
この物件の建物には、オートロックや防犯カメラや宅配ボックスが設置されており、来客時には居室内のテレビモニターにて訪問者の顔を確認することができます。
室内設備
システムキッチンには、2つ以上のガスコンロが設置されており、キッチン設備として食洗機が備え付けられています。 お風呂とトイレは別です。お風呂には、追い焚き機能が備わっています。 トイレは、温水洗浄便座機能付きになります。 女性に嬉しい設備のシャワーの付いている洗面化粧台があります。 洗濯に便利な設備として、室内洗濯機置場があります。浴室乾燥機も設置されているので、梅雨時の生乾き臭も比較的防ぐことができます。
居室状況
お部屋の床は、フローリングとなっており、エアコンが設置されています。 インターネットも無料で入居後すぐ生活が始められます。 収納スペースとして、基本的な居室にクローゼットを設置、玄関にはシューズボックスがあります。
建物設備共用部分
居室外の専有スペースとして、洗濯物を干すなどの用途として利用できるバルコニーがあります。 建物の共用スペースに、日々の出入に便利なエレベーターや、いざという時の防犯カメラや、急な外出や不在がちのご家庭の荷物受け取りに便利な宅配ボックスや、居室内を常に清潔に保てる24時間利用可能なゴミ捨て置き場が設置されています。 平面駐車場があり2台以上の車で利用することができます。駐輪場、バイク置き場が利用できます。
周辺施設
この物件の学区は、松原小学校区・梅丘中学校区です。
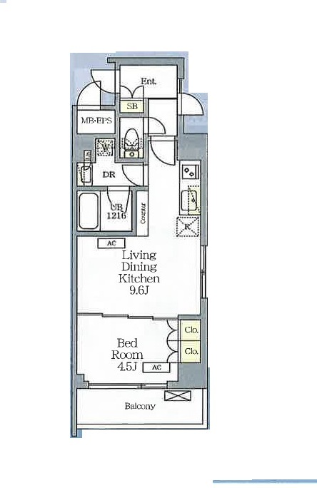
AIFLAT明大前 503号室の間取り
間取り:1LDK
間取詳細:1LDK(LDK9.6・洋4.5)
専有面積:35.78㎡
方位:南東
部屋位置:その他
AIFLAT明大前 503号室の設備
キッチン
システムキッチン
ガスコンロ
ガスコンロ二口以上
食洗機
バス・トイレ
バス・トイレ別
追い焚き
浴室乾燥機
温水洗浄便座
独立洗面台
シャワー付洗面化粧台
玄関
TVモニタ付インターホン
オートロック
宅配ボックス
収納
クローゼット
シューズボックス
全居室収納
バルコニー
バルコニー
ルーフバルコニー
室内設備
エアコン
フローリング
室内洗濯機置場
位置・立地
2階以上
最上階
インフラ
インターネット可
建物設備
エレベーター
防犯カメラ
24時間ゴミ出しOK
駐車場
平面駐車場
駐車2台以上可
駐輪場
バイク置き場
入居条件
ペット可・相談
2人入居可
オンライン相談可
オンライン内見可
保証人不要
ライフステージ
一人暮らしに人気の設備
カップルに人気の設備
家族に人気の設備
夫婦に人気の設備
三世代で人気の設備
こだわり
セキュリティ対策重視
収納重視
タイパ重視
外で子どもと遊びたい
急な来客でも駐車したい
雨の日でも洗濯したい
洋室で暮らしたい
持ち物をスッキリ隠す収納部屋
趣味
オークション・通販が好き
ガーデニングが好き
お得な条件
インターネット無料
AIFLAT明大前 503号室の賃貸契約情報
毎月支払う |
家賃20.5万円/月共益費15,000円/月 |
|---|---|
初期費用 |
敷金1ヶ月 (20.5万円)礼金-保証金-敷引き償却金- |
更新料 |
205,000円 |
鍵交換費用 |
- |
室内清掃費用 |
- |
プレミアムクラブ加入費 |
19,800円 |
駐車場料金 |
27,500円 |
損保・ |
借家賠付きの火災保険にご加入いただきます。 |
保証会社 |
加入要 保証会社利用料:初回50% 月額1% |
契約期間 |
2年 |
入居可能日 |
2026年05月上旬 |
フリーレント期間 |
- |
取引形態 |
一般媒介 |
備考 |
ペット飼育時敷金1ヶ月積み増し。 1年未満解約の場合総賃料1ヶ月分違約金有 |
AIFLAT明大前 503号室の建物情報
建物名称 |
AIFLAT明大前 |
|---|---|
最寄駅 |
|
所在地 |
東京都世田谷区松原 |
階層 |
5階部分(地上5階建) |
構造 |
RC |
築年数 |
新築 |
駐車場 |
27,500円 |
小学校学区 |
松原小学校 |
中学校学区 |
梅丘中学校 |
- 学区データについて
- ※学区データは必ずしも正確とは限りません。詳細に関しては最寄店舗または各自治体の教育委員会に必ずご確認ください。
無料この物件に問い合わせ
- AIFLAT明大前 503号室

-
20.5万円
(共益費
15,000円)
- 敷
- 1ヶ月
- 礼
- -
- 保
- -
- 償
- -
AIFLAT明大前 503号室の物件のお問い合わせ先・取り扱い店舗
ハウスコム 明大前店
- アクセス
-
京王線「明大前駅」中央口徒歩1分
京王井の頭線「明大前駅」中央口徒歩1分
- 住所
- 〒156-0043 東京都世田谷区松原2丁目44−1 グランシーン明大前 1階
- 営業時間
- 10:00~18:00
- 定休日
- なし
- 営業エリア
- 世田谷区・杉並区・渋谷区・中野区・新宿区・三鷹市・調布市
- 取引態様
- 賃貸仲介業



