レジェンダリーコート赤羽ANNEX 1002号室(10階/1SLDK)の賃貸物件(賃貸マンション)
東京都北区にあるレジェンダリーコート赤羽ANNEX 1002号室はTVモニタ付インターホン、宅配ボックス、バルコニー、エレベーター、駐輪場などが特徴です。最寄り駅の東京メトロ 南北線赤羽岩淵駅から徒歩4分です。レジェンダリーコート赤羽ANNEX 1002号室の詳細はハウスコム 赤羽店までお気軽にお問い合わせください!
情報更新日:
次回更新予定日:
※次回更新予定日について:お店側では順次空室確認を行っていますが、次回更新予定日までに空室確認が行えない場合には、この物件情報は自動的に削除されます。
レジェンダリーコート赤羽ANNEX 1002号室の賃貸物件部屋概要
家賃 |
19.1万円
初期費用を |
|---|---|
共益費 |
9,000円
入居可能時期 |
敷金/礼金 |
1ヶ月 / 2ヶ月 |
保証金/ |
- / - |
最寄駅 |
|
所在地 |
東京都北区赤羽 |
部屋番号 |
1002号室 |
間取り |
1SLDK(LDK12.5・洋4.1・洋3.6) |
専有面積 |
48.85㎡ |
築年数 |
2021年2月(築5年) |
階数 |
10階部分(地上10階建) |
方位・位置 |
南 / 角部屋 |
物件種別 |
賃貸マンション |
構造 |
RC |
駐車場 |
- |
小学校学区 |
赤羽小学校 |
中学校学区 |
赤羽岩淵中学校 |
他の空き部屋 |
ー |
- 学区データについて
- ※学区データは必ずしも正確とは限りません。詳細に関しては最寄店舗または各自治体の教育委員会に必ずご確認ください。
レジェンダリーコート赤羽ANNEX 1002号室の特徴
-
一人暮らしに人気の設備

-
カップルに人気の設備

-
家族に人気の設備

-
夫婦に人気の設備

-
三世代で人気の設備

-
日当たり重視

-
セキュリティ対策重視

-
外で子どもと遊びたい

-
雨の日でも洗濯したい

-
料理が好き

-
服やおしゃれが好き

-
推し活グッズを飾りたい

-
オークション・通販が好き

-
ガーデニングが好き

セキュリティ
この物件の建物には、オートロックや防犯カメラや宅配ボックスが設置されており、来客時には居室内のテレビモニターにて訪問者の顔を確認することができます。
室内設備
システムキッチンには、ガスコンロが備え付けられています。 お風呂とトイレは別です。お風呂には、追い焚き機能が備わっています。 トイレは、温水洗浄便座機能付きになります。 女性に嬉しい設備の独立した洗面化粧台があります。 洗濯に便利な設備として、室内洗濯機置場があります。浴室乾燥機も設置されているので、梅雨時の生乾き臭も比較的防ぐことができます。
居室状況
エアコンが設置されています。 インターネットも無料で入居後すぐ生活が始められます。 収納スペースとして、通常よりも収納力の高いウォークインクローゼットがあります。
建物設備共用部分
居室外の専有スペースとして、洗濯物を干すなどの用途として利用できるバルコニーがあります。 建物の共用スペースに、日々の出入に便利なエレベーターや、いざという時の防犯カメラや、急な外出や不在がちのご家庭の荷物受け取りに便利な宅配ボックスが設置されています。 駐輪場が利用できます。
周辺施設
この物件の学区は、赤羽小学校区・赤羽岩淵中学校区です。
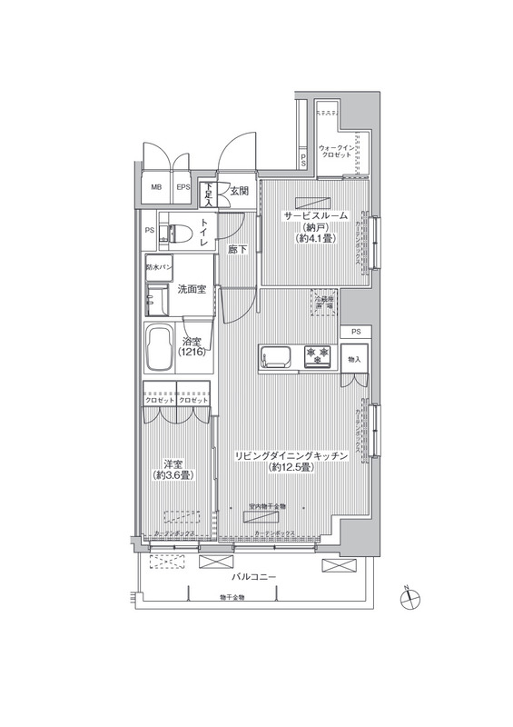
レジェンダリーコート赤羽ANNEX 1002号室の間取り
間取り:1SLDK
間取詳細:1SLDK(LDK12.5・洋4.1・洋3.6)
専有面積:48.85㎡
方位:南
部屋位置:角部屋
レジェンダリーコート赤羽ANNEX 1002号室の設備
キッチン
システムキッチン
カウンターキッチン
ガスコンロ
バス・トイレ
バス・トイレ別
追い焚き
浴室乾燥機
温水洗浄便座
独立洗面台
玄関
TVモニタ付インターホン
オートロック
宅配ボックス
収納
ウォークインクローゼット
バルコニー
バルコニー
ルーフバルコニー
室内設備
エアコン
室内洗濯機置場
位置・立地
2階以上
最上階
角部屋
南向き
インフラ
インターネット可
BS
CS
建物設備
エレベーター
防犯カメラ
駐輪場
ライフステージ
一人暮らしに人気の設備
カップルに人気の設備
家族に人気の設備
夫婦に人気の設備
三世代で人気の設備
こだわり
日当たり重視
セキュリティ対策重視
外で子どもと遊びたい
雨の日でも洗濯したい
趣味
料理が好き
服やおしゃれが好き
推し活グッズを飾りたい
オークション・通販が好き
ガーデニングが好き
お得な条件
インターネット無料
レジェンダリーコート赤羽ANNEX 1002号室の賃貸契約情報
毎月支払う |
家賃19.1万円/月共益費9,000円/月 |
|---|---|
初期費用 |
敷金1ヶ月 (19.1万円)礼金2ヶ月 (38.2万円)保証金-敷引き償却金- |
更新料 |
191,000円 |
鍵交換費用 |
22,000円 |
室内清掃費用 |
- |
契約事務手数料 |
5,500円 |
駐車場料金 |
- |
損保・ |
借家賠付きの火災保険にご加入いただきます。 |
保証会社 |
加入要 保証会社利用料:初回保証料:総賃料40%、月次保証料:総賃料1%、更新保証料:賃料のみの1%/2年毎 保証会社付帯のクレジットカード(HeartOneカード)発行が必須です。 |
契約期間 |
2年 |
入居可能日 |
相談 |
フリーレント期間 |
- |
取引形態 |
一般媒介 |
備考 |
駐輪場:1住戸1台無料 鍵交換代 22000円 初期:契約事務手数料 5500円 保証会社利用必須 初回保証料:総賃料40%、月次保証料:総賃料1%、更新保証料:賃料のみの1%/2年毎 保証会社付帯のクレジットカード(HeartOneカード)発行が必須です。 |
レジェンダリーコート赤羽ANNEX 1002号室の建物情報
建物名称 |
レジェンダリーコート赤羽ANNEX |
|---|---|
最寄駅 |
|
所在地 |
東京都北区赤羽 |
階層 |
10階部分(地上10階建) |
構造 |
RC |
築年数 |
2021年2月(築5年) |
駐車場 |
- |
小学校学区 |
赤羽小学校 |
中学校学区 |
赤羽岩淵中学校 |
- 学区データについて
- ※学区データは必ずしも正確とは限りません。詳細に関しては最寄店舗または各自治体の教育委員会に必ずご確認ください。
無料この物件に問い合わせ
- レジェンダリーコート赤羽ANNEX 1002号室

-
19.1万円
(共益費
9,000円)
- 敷
- 1ヶ月
- 礼
- 2ヶ月
- 保
- -
- 償
- -
レジェンダリーコート赤羽ANNEX 1002号室の物件のお問い合わせ先・取り扱い店舗
ハウスコム 赤羽店
- アクセス
-
京浜東北・根岸線「赤羽駅」南口徒歩1分
- 住所
- 〒115-0044 東京都北区赤羽南1丁目7−3 厚生堂ビル1階
- 営業時間
- 10:00~18:00
- 定休日
- なし
- 営業エリア
- 北区,板橋区,足立区,川口市,戸田市
- 取引態様
- 賃貸仲介業

